Newsletter
Podaj swój adres e-mail, jeżeli chcesz otrzymywać informacje o nowościach i promocjach.
Carport K6500 konstrukcja stalowa gruntowa PV
0
(Ilość ocen: 0)
dodaj do przechowalni
Opis
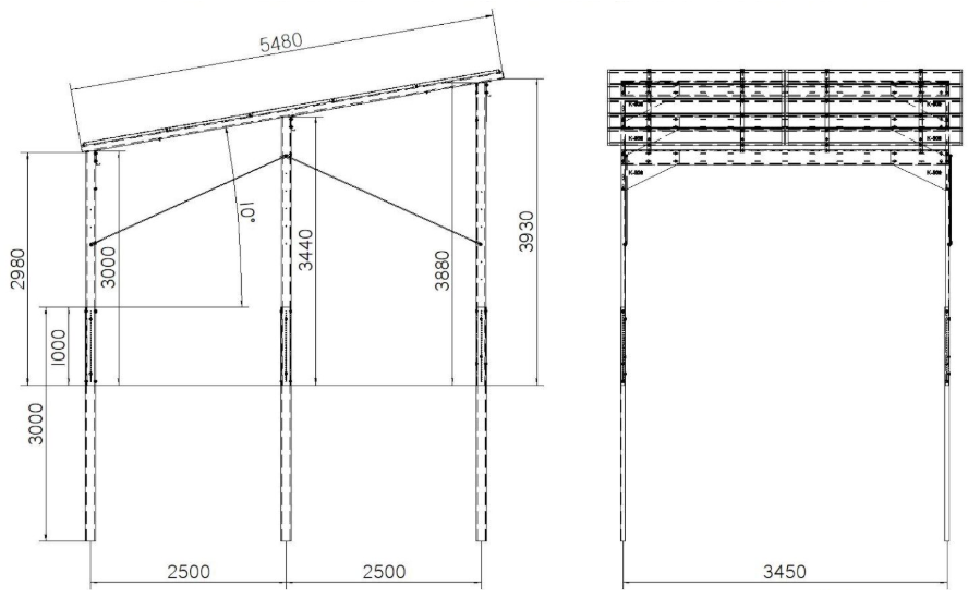
Carport K6500
Stalowa jednostanowiskowa konstrukcja montowana bezpośrednio w grunt za pomocą fundamentów wbijanych. Przeznaczona do montażu paneli fotowoltaicznych, zapewnia ochronę pojazdu oraz efektywne wykorzystanie przestrzeni pod instalację PV. Solidna i trwała rama łączy funkcjonalność z nowoczesnym designem, dzięki czemu carport sprawdza się zarówno na posesjach prywatnych, jak i w obiektach komercyjnych.
Informacja o zamówieniu i transporcie:
- Podana cena dotyczy konstrukcji przedstawionej na zdjęciach i obejmuje wyłącznie konstrukcję carportu – nie zawiera instalacji fotowoltaicznej.
- Koszty transportu wyceniane są indywidualnie w zależności od zamówienia i lokalizacji dostawy.
- Rozładunek konstrukcji odbywa się po stronie Odbiorcy pod wskazanym adresem dostawy. W przypadku potrzeby transportu z HDS prosimy o kontakt (usługa dodatkowo płatna, wyceniana indywidualnie).
- Do zamówienia, na życzenie klienta, dołączamy również instrukcję montażu.
- Istnieje możliwość konfiguracji konstrukcji pod dowolną liczbę i wielkość modułów pv.
Specyfikacja techniczna
- Typ: stalowa konstrukcja gruntowa pod panele fotowoltaiczne
- Model: K6500 - 1×3500 mm
- Liczba modułów PV: 10
- Zakres długości modułów: 1740–2000 mm
- Kąt nachylenia paneli: stały 10°
- Montaż: fundamenty wbijane w grunt (ok. 2 m głębokości)
- Materiał: stal S350GD z powłoką antykorozyjną Magnelis ZM 430
- Szerokość modułów PV: max 1152 mm
- Zastosowanie: posesje prywatne, parkingi firmowe, tereny komercyjne
- Możliwość rozbudowy o kolejne moduły G2 3500mm, G3 4200mm lub G4 5250 mm
Zalecane jest wykonanie betonowego fundamentu pod każdym słupem. Fundament powinien mieć wymiary co najmniej 0,8 × 0,8 × 0,8 m i być wykonany z betonu klasy C20/25.

Zalety i korzyści
- Szybki montaż wbijany w grunt - brak konieczności betonowania, prosty montaż na różnych terenach.
- Ochrona pojazdu - chroni auto przed deszczem, śniegiem, gradem i promieniowaniem UV.
- Trwałość i stabilność - stalowa rama z powłoką Magnelis zapewnia odporność na korozję i długowieczność konstrukcji.
- Fabrycznie dopasowana pod 10 modułów PV - gotowa do instalacji standardowych paneli.
- Efektywne wykorzystanie przestrzeni - kompaktowa forma, jednocześnie maksymalizująca powierzchnię pod instalację PV.
- Bez ingerencji w nawierzchnię - montaż wbijany nie wymaga fundamentów betonowych, co ułatwia użytkowanie.
- Estetyka i nowoczesny design - minimalistyczna forma pasuje zarówno do zabudowy prywatnej, jak i komercyjnej.
Opinie o produkcie (0)
Komentarze lub opinie wyświetlane pod produktem pochodzą od klientów, którzy nabyli produkt w naszym sklepie lub też mogą pochodzić od osób, którzy nie nabyli wskazanego produktu w naszym sklepie. Nie weryfikujemy wpisów dokonywanych przez osoby komentujące nasze produkty. Mogą pochodzić od klientów zalogowanych jak i niezalogowanych. Wyświetlamy wszystkie opinie pozytywne i negatywne.
