Newsletter
Podaj swój adres e-mail, jeżeli chcesz otrzymywać informacje o nowościach i promocjach.
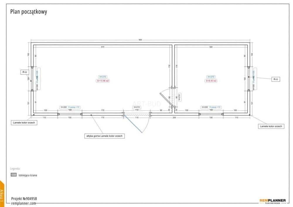
Kontener usługowy 9x3 z zapleczem socjalnym
0
(Ilość ocen: 0)
dodaj do przechowalni
Opis
Kontener usługowy 9x3 z wydzielonym pomieszczeniem
Kontener usługowy 9x3 to przestronne i funkcjonalne rozwiązanie do prowadzenia działalności lub jako zaplecze biurowe. Wydzielone pomieszczenie pozwala na lepszą organizację pracy i oddzielenie stref użytkowych. Solidna konstrukcja i izolacja zapewniają komfort użytkowania przez cały rok.
Najważniejsze cechy
- Kontener usługowy o powierzchni 27 m²
- Wydzielone dodatkowe pomieszczenie
- Konstrukcja w technologii płyty warstwowej PIR 100 mm
- Przeszklenia zapewniające dostęp światła dziennego
- Gotowa instalacja elektryczna
- Estetyczne wykończenie elewacji lamelami
- Wentylacja grawitacyjna
Wymiary
- Długość: 9,00 m
- Szerokość: 3,00 m
- Powierzchnia: 27 m²
- Wysokość wewnętrzna: od 2,40 m do 2,30 m
Dane techniczne
- Ściany: płyta warstwowa PIR 100 mm
- Dach: płyta warstwowa PIR 100 mm
- Podłoga: płyta warstwowa 100 mm + płyta OSB 10 mm
- Wykończenie podłogi: wykładzina PCV, imitacja paneli, kolor jasny brąz
Stolarka i przeszklenia
- Drzwi przeszklone aluminiowe: 110 x 210 cm
- Witryny PCV: 2 x 100 x 200 cm
- Okna rozwierno-uchylne: 2 x 100 x 100 cm
Wykończenie elewacji
- Lamele elewacyjne standard
- Układ: 2 słupki boczne + attyka górna
- Kolor: orzech (ciemny brąz)
Instalacja elektryczna
- 2 punkty świetlne LED
- 3 podwójne gniazda elektryczne
- Skrzynka z bezpiecznikami
Wentylacja
- Wentylacja grawitacyjna – 1 szt.
Układ pomieszczeń
- Ścianka działowa: 3 mb (płyta PIR 80 mm)
- Drzwi wewnętrzne MDF: 80 x 210 cm
Opcje dodatkowe
Możliwość indywidualnej koncepcji zarówno wyposażenia, układu ścian, okien, drzwi instalacji oraz nawet wymiarów zewnętrznych czy ogrzewania.
Ten kontener jest wersją gotową przykładową. W sprawie wersji indywidualnych prosimy kontaktować się z handlowcami naszej firmy.
Koszt dostawy ustalany jest indywidualnie i zależy od zamawianej ilości oraz odległości miejsca dostawy. W celu przygotowania dokładnej wyceny prosimy o kontakt.
Opinie o produkcie (0)
Komentarze lub opinie wyświetlane pod produktem pochodzą od klientów, którzy nabyli produkt w naszym sklepie lub też mogą pochodzić od osób, którzy nie nabyli wskazanego produktu w naszym sklepie. Nie weryfikujemy wpisów dokonywanych przez osoby komentujące nasze produkty. Mogą pochodzić od klientów zalogowanych jak i niezalogowanych. Wyświetlamy wszystkie opinie pozytywne i negatywne.
