Newsletter
Podaj swój adres e-mail, jeżeli chcesz otrzymywać informacje o nowościach i promocjach.
Kontener usługowy 7x3 z zapleczem socjalnym i klimatyzacją
0
(Ilość ocen: 0)
dodaj do przechowalni
Opis
Kontener usługowy 7x3 z zapleczem socjalnym i klimatyzacją
Funkcjonalny kontener usługowy 7x3 z wydzielonym zapleczem socjalnym to kompleksowe rozwiązanie do prowadzenia działalności. Dzięki pełnemu wyposażeniu, aneksowi kuchennemu i WC, obiekt jest gotowy do użytkowania od razu po dostawie. Idealny jako biuro, punkt usługowy lub gastronomiczny.
Najważniejsze cechy
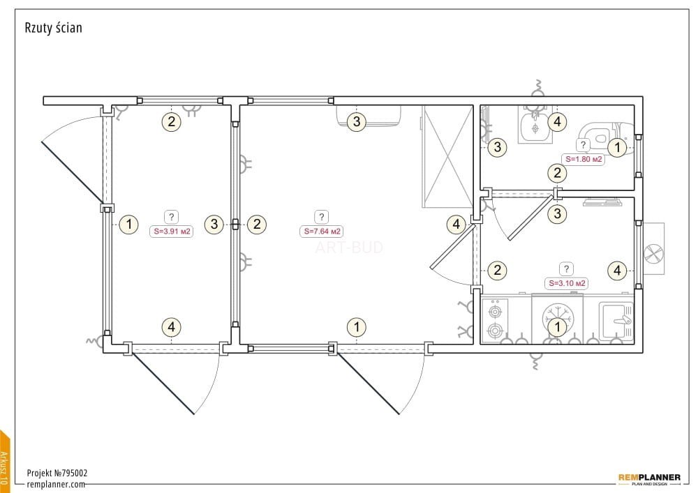
- Kontener usługowy o powierzchni 21 m²
- Wydzielone zaplecze socjalne i część robocza
- Klimatyzacja z funkcją grzania + dodatkowe ogrzewanie
- Aneks kuchenny oraz kompletne WC
- Duża ilość przeszkleń i okno wydawcze
- Gotowa instalacja elektryczna i wodno-kanalizacyjna
- Estetyczna elewacja z wysuniętym daszkiem
Wymiary
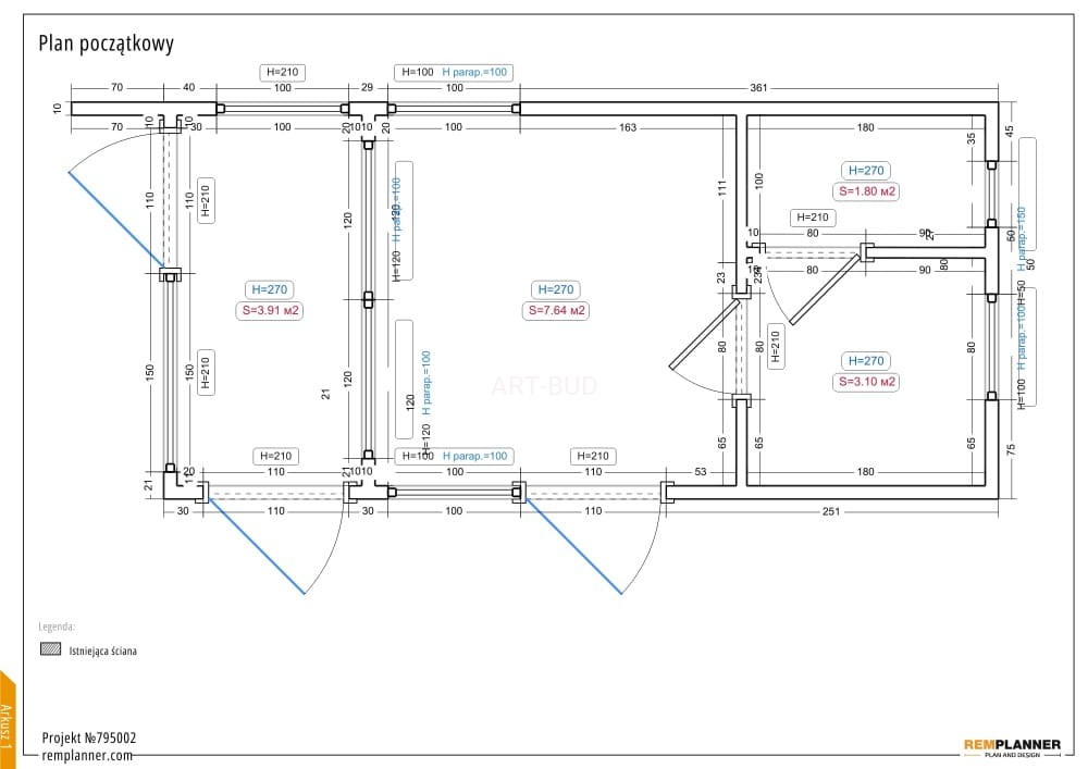
- Długość: 7,00 m
- Szerokość: 3,00 m
- Powierzchnia: 21 m²
- Wysokość wewnętrzna: od 2,40 m do 2,30 m
Dane techniczne
- Konstrukcja: rama stalowa
- Ściany: płyta warstwowa PIR 100 mm
- Dach: płyta warstwowa PIR 100 mm
- Podłoga: płyta warstwowa 100 mm + płyta OSB 10 mm
- Wykończenie podłogi: wykładzina PCV
Stolarka i przeszklenia
- Drzwi przeszklone aluminiowe: 3 x 110 x 210 cm
- Witryny fix: 100 x 210 cm, 120 x 120 cm, 150 x 210 cm
- Okna R-U: 80 x 100 cm, 2 x 100 x 100 cm, 50 x 50 cm
- Okno wydawcze przesuwne: 120 x 120 cm
- Parapet roboczy: 2,8 m
Wykończenie elewacji
- Kasetony elewacyjne standard
- Układ: słupek boczny + attyka górna (4 elementy)
- Kolor: czerwony
- Daszek wysunięty: 300 x 70 cm
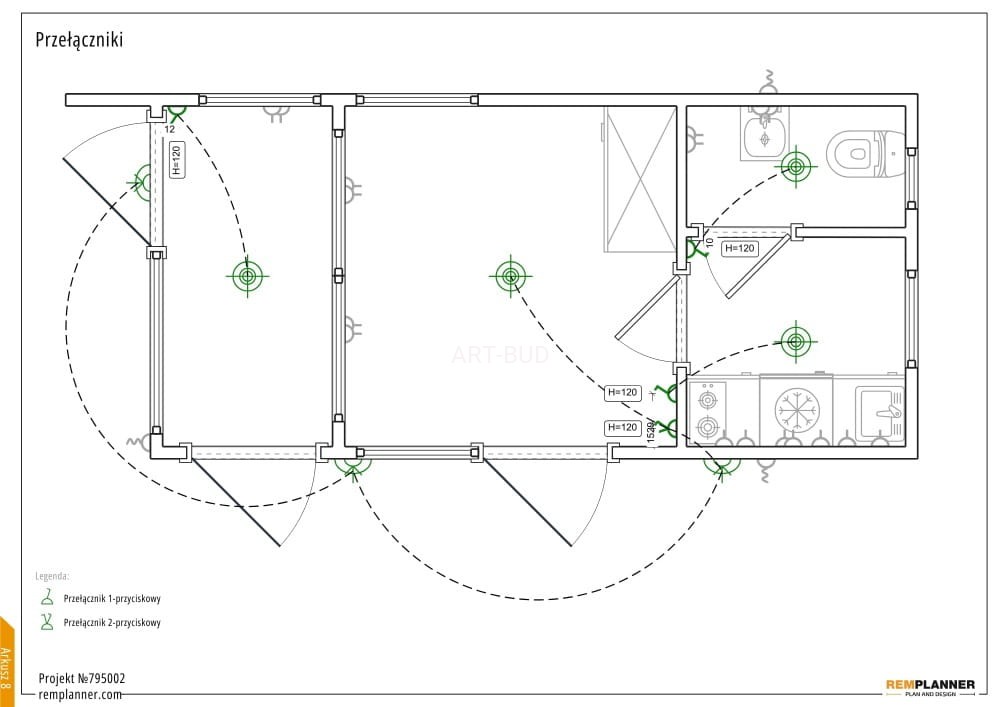
Instalacja elektryczna
- 4 punkty świetlne LED
- 11 gniazd elektrycznych
- Skrzynka z bezpiecznikami
- 3 kinkiety zewnętrzne
- 2 punkty oświetlenia LED pod daszkiem
- Wyprowadzenie pod kamerę – 3 szt.
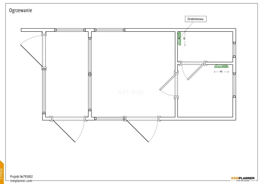
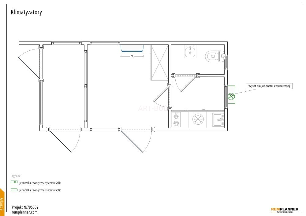
Ogrzewanie i klimatyzacja
- Klimatyzacja 3,5 kW z funkcją grzania
- Grzejnik elektryczny
- Grzejnik drabinkowy (łazienka)
Układ wnętrza i wyposażenie
- Ścianki działowe + drzwi MDF
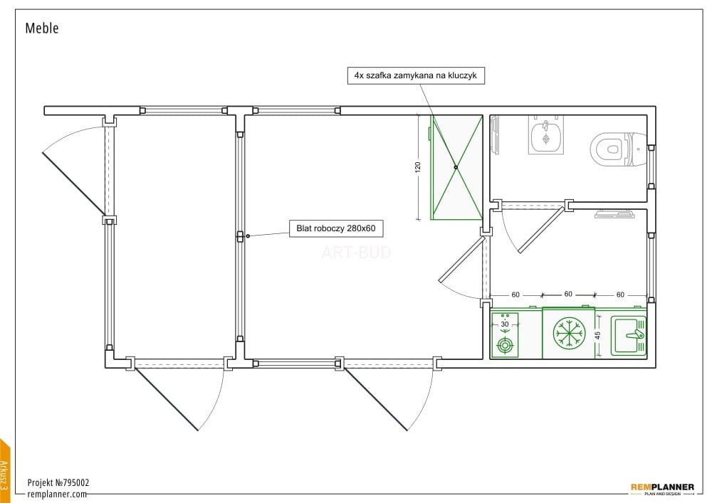
- Blat roboczy 280 x 60 cm
- Szafa w zabudowie (4 zamykane szafki)
- Aneks kuchenny 1,8 mb (szafki, zlewozmywak, płyta, lodówka, mikrofala, okap)
- Kompletny moduł WC (toaleta, umywalka, podgrzewacz wody)
- Pełna instalacja wodno-kanalizacyjna
Opcje dodatkowe
- Możliwość indywidualnej konfiguracji wyposażenia i układu
Koszt dostawy ustalany jest indywidualnie i zależy od zamawianej ilości oraz odległości miejsca dostawy. W celu przygotowania dokładnej wyceny prosimy o kontakt.
Opinie o produkcie (0)
Komentarze lub opinie wyświetlane pod produktem pochodzą od klientów, którzy nabyli produkt w naszym sklepie lub też mogą pochodzić od osób, którzy nie nabyli wskazanego produktu w naszym sklepie. Nie weryfikujemy wpisów dokonywanych przez osoby komentujące nasze produkty. Mogą pochodzić od klientów zalogowanych jak i niezalogowanych. Wyświetlamy wszystkie opinie pozytywne i negatywne.
