Newsletter
Podaj swój adres e-mail, jeżeli chcesz otrzymywać informacje o nowościach i promocjach.
Drewniany domek letniskowy Merkury II 55 + 10 m2
Opis
Drewniany domek letniskowy Merkury II 55 + 10 m2
Merkury II to domek z tarasem wejściowym, wkomponowanym w bryłę budynku. To wygodny, kompletny, pięcioizbowy domek z drewnianymi schodami na antresolę i wygodnym tarasem wejściowym z balustradami, zadaszonym górną kondygnacją wspartą na słupach w obrysie domku.
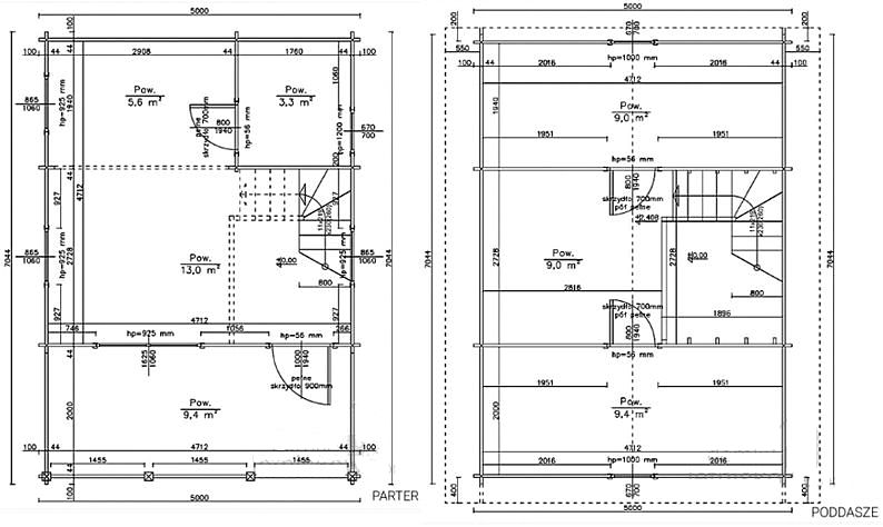
Drewniany domek z poddaszem Merkury II to bardzo jasny, ustawny i doskonały do letniego wypoczynku domek letniskowy. Merkury II jest uproszczoną wersją domku Merkury, od którego różni się rozkładem pokoi na parterze, zmienionym położeniem wejścia oraz wygodnymi schodami zabiegowymi. Domek można wybudować na zgłoszenie - bez pozwolenia budowlanego! Powierzchnia zabudowy domku wynosi dokładnie 32,83 m2 przy zachowaniu zewnętrznych wymiarów bez wypustów ścian 684x480 cm. Licząc łączny metraż pomieszczeń na parterze i poddaszu powierzchnia użytkowa domku wynosi 55 metrów kwadratowych, natomiast taras domku ma powierzchnię równą 9,4 metra kwadratowego. Razem z wypustami domek mierzy 500x704 cm. Ściany zostały wykonane z litego, czterostronnie struganego balika świerkowego o grubości 44 mm, podłoga ma grubość 28 mm, a dach w standardzie jest w pełni odeskowany 19 mm podbitką. Wysokość ścian parteru wynosi około 220 cm, poddasze posiada wysoką ścianę kolankową, a wysokość całego domku to 496,5 cm. Dach domku jest symetryczny i posiada 30 stopniowe, optymalne nachylenie. Wnętrze drewnianego domku letniskowego Merkury II składa się z 5 pomieszczeń. Na parterze znajduje się bardzo duży pokój dzienny o powierzchni 18,6 m2 oraz łazienka o powierzchni 3,3 metra kwadratowego. L-kształtny układ pokoju dziennego sprawia że pomieszczenie jest bardzo ustawne, a duża liczba okien oraz przeszklone drzwi czynią pomieszczenie niezwykle jasnym. W pomieszczeniu znajdują się również prowadzące na poddasze schody zabiegowe. Poddasze składa się z trzech pomieszczeń, pokoju przechodniego oraz dwóch sypialni o powierzchni 9 i 9,4 metra kwadratowego. Pokój dzienny oświetlają aż trzy okna jednoskrzydłowe oraz jedno okno dwuskrzydłowe, w przestronnej łazience znajduje się okno łazienkowe, a w każdej sypialni na poddaszu po jednym oknie jednoskrzydłowym. Drewniany domek letniskowy Merkury II powinien spełnić oczekiwania zarówno inwestorów prywatnych, deweloperów jak i właścicieli ośrodków wypoczynkowych gwarantując komfortowy całoroczny wypoczynek. Dzięki wielu opcjom dodatkowym domek można dopasować do niemal każdych oczekiwań, a kilkanaście doświadczonych ekip montażowych gwarantuje szybką realizację zamówienia.
PODSTAWOWE INFORMACJE:
Posiada duży ustawny pokój na parterze
Posiada schody zabiegowe
Ma 55 m2 powierzchni użytkowej
Posiada dwie sypialnie na poddaszu
Został wykonany z wysokiej jakości świerku skandynawskiego
Doskonale sprawdzi się jako domek letniskowy
24 miesięczna gwarancja
| PODSTAWOWE WYMIARY: |
| Wymiar z el. wystającymi: 500x704,4 cm Wymiar bez el. wystających: 480x684 cm Grubość ściany: 44 mm Wysokość ściany: 220 cm Wysokość w szczycie: 496 cm Powierzchnia zabudowy: 55 + 10 m2 Powierzchnia dachu: 51 m2 Kąt nachylenia dachu: 30o Wypust dachu: 40 cm Grubość deski dachowej: 19 mm Grubość deski podłogowej: 28 mm Wymiar belki podwalinowej: 45x95 mm Ilość drzwi: 1x 900x1940 mm, 3x 700x1940 mm Ilość okien rozwieranych: 3x 850x1080 mm, 3x 670x700 mm Ilość podw. okien uch. rozw.: 1 x 1625 x 1060 mm |
USŁUGI DODATKOWE NA ZAMÓWIENIE:
Montaż
Malowanie
Pokrycie dachu papą
Pokrycie dachu gontem
Rynny
Ocieplenie podłogi
Ocieplenie ścian
Ocieplenie dachu
Transport

Malowanie będące usługą dodatkową obejmuje jednokrotne malowanie lazurą z zewnątrz budynku. W sprawie malowania na inne kolory prosimy o kontakt.
INFORMACJE DODATKOWE:
Każda konstrukcja jest sprzedawana do samodzielnego montażu.
Klient otrzymując konstrukcję w pakiecie dostaje instrukcję oraz elementy służące do montażu.
Ewentualny montaż przez wyspecjalizowaną ekipę to opcja dodatkowa po uzgodnieniu.
Kolory na jakie mogą być pomalowane konstrukcje drewniane można znaleźć w artykule:
KOLORY LAZURY DO MALOWANIA:
http://biblioteka.artbud.com.pl/pliki/1217/6146.png
OPCJE DODATKOWE:
http://biblioteka.artbud.com.pl/pliki/1217/7084.jpg
MONTAŻ DOMKU:
http://biblioteka.artbud.com.pl/pliki/1217/6147.jpg
PRZYGOTOWANIE PODŁOŻA:
Ważne!Złożenie przez klienta zamówienia poprzez dodanie produktu do koszyka nie jest równoznaczne z kupnem produktu. Sprzedawca traktuje to jako zamówienie wstępne. Dopiero po obliczeniu kosztów dostawy i przyjęciu ich przez zamawiającego, sprzedawca przystępuje do realizacji zamówienia.
Opinie o produkcie (0)
Komentarze lub opinie wyświetlane pod produktem pochodzą od klientów, którzy nabyli produkt w naszym sklepie lub też mogą pochodzić od osób, którzy nie nabyli wskazanego produktu w naszym sklepie. Nie weryfikujemy wpisów dokonywanych przez osoby komentujące nasze produkty. Mogą pochodzić od klientów zalogowanych jak i niezalogowanych. Wyświetlamy wszystkie opinie pozytywne i negatywne.
