Newsletter
Podaj swój adres e-mail, jeżeli chcesz otrzymywać informacje o nowościach i promocjach.
Drewniany domek letniskowy Weekend IV 25 + 13 m2 z tarasem i antresolą
Opis
Drewniany domek letniskowy Weekend IV 25 + 13 m2 z tarasem
Drewniany domek letniskowy WEEKEND IV to sprawdzona formuła na udany wypoczynek zarówno na prywatnej działce jak i w ośrodku wypoczynkowym. Dzięki antresoli domek jest w stanie zapewnić wypoczynek nawet sześciu osobom na raz! Domek można wybudować na zgłoszenie, ponieważ posiada powierzchnię zabudowy mniejszą niż 35 m2.
Weekend IV powierzchnią zabudowy części zamkniętej niczym nie różni się od pierwowzoru.
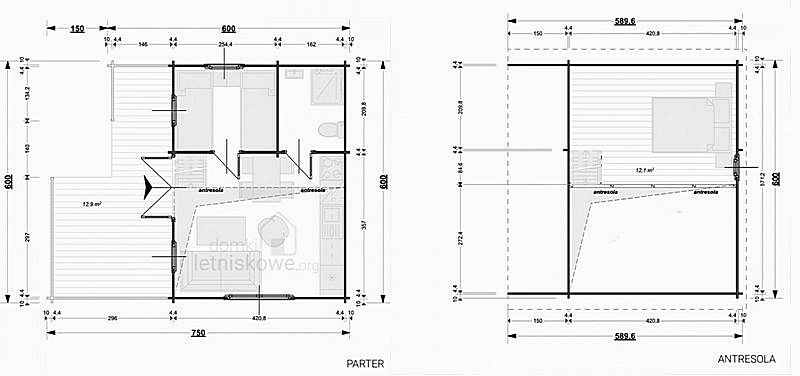
Domek ma 25 m<2> powierzchni części zamkniętej - parteru, plus powiększony do 12,9 m<2> taras w kształcie litery L. Antresola mierzy 420 x 272 cm, co daje 11,4 m2 powierzchni razem z balustradą. Licząc najbardziej wysuniętą część tarasu domek ma wymiar 750x600 cm, natomiast mierząc wyłącznie część liczoną do powierzchni zabudowy, bez wypustów ścian 450x580 cm. Wymiar domku razem z tarasem, ale bez wypustów ścian to 580x730 cm. Ściany zostały wykonane z litego balika świerkowego o grubości 44 mm. Drewno zanim zostanie poddane cyfrowej obróbce jest czterostronnie strugane a następnie suszone. Podłoga domku ma 28 mm grubości, a wykonany z tego samego surowca co ściany legar podwalinowy ma wymiar 45x95 mm. Domek został zwieńczony symetrycznym, dwuspadowym dachem o nachyleniu 45 stopni, a jego 150 cm wypust stanowi zadaszenie nad tarasem. Dach w standardzie jest deskowany deską świerkową o grubości 19 mm.
Domek składa się z części zamkniętej o powierzchni 25 m2 oraz tarasu o powierzchni 12,9 m2. W środku znajdują się trzy pomieszczenia oraz antresola. W największym pomieszczeniu o powierzchni 14,9 m2 najczęściej lokalizuje się salon oraz aneks kuchenny, średnie pomieszczenie 5,3 m2 przeznacza się na sypialnię, a najmniejsze 3,4 m2 na łazienkę. Antresola spokojnie pomieści podwójne duże łóżko oraz dwie szafki nocne bądź garderobę. Do domku wchodzi się za pomocą dużych przeszklonych dwuskrzydłowych drzwi, w środku znajduje się dwoje jednoskrzydłowych drzwi prowadzących do pomieszczeń, na antresolę można wejść za pomocą wygodnej i solidnej drabiny. Domek posiada dwa okna stałe po jednym w pokoju dziennym i w sypialni, jedno okno dwuskrzydłowe w pokoju dziennym, jedno okno jednoskrzydłowe w sypialni. W łazience oraz na antresoli znajdują się mniejsze jednoskrzydłowe uchylno-rozwierne okienka. Do domku oferowane są wszystkie standardowe usługi, a wykonanie ich przez jedną z naszych wyspecjalizowanych ekip montażowych gwarantuje satysfakcję. Domek dostępny jest razem z opcjami dodatkowymi, takimi jak: ocieplenie, instalacja rynien, pokrycie dachu papą, gontem bitumicznym lub blachodachówką. Domek może być dostarczony, zmontowany oraz pomalowany przez jedną z naszych profesjonalnych ekip monterskich.
Wszystkie elementy domku w wersji podstawowej dostarczane są jako nieimpregnowane. Malowanie będące usługą dodatkową obejmuje jednokrotne malowanie lazurą z zewnątrz. W sprawie malowania na inne kolory prosimy o kontakt.
NAJWAŻNIEJSZE CECHY:
Wykonany na podstawie bestselleru
Posiada ustawną antresolę na której można urządzić sypialnię
Posiada powiększony taras
Posiada dach o nachyleniu 45 stopni
Ma 25 m2 powierzchni zabudowy
Został wykonany ze świerku skandynawskiego
Sprawdzi się zarówno na działce rekreacyjnej jak i w ośrodku pod wynajem
24 miesięczna gwarancja
PARAMETRY TECHNICZNE:
Wymiar z el. wystającymi: 600x750 cmWymiar bez el. wystających: 580x630 cm
Grubość ściany: 44 mm
Wysokość ściany: 240 cm
Wysokość w szczycie: 591 cm
Powierzchnia zabudowy: 25 + 12,9 = 37,9 m2
Powierzchnia dachu: 56 m2
Kąt nachylenia dachu: 45o
Wypust dachu: 150 cm
Grubość deski dachowej: 19 mm
Grubosć deski podłogowej: 28 mm
Wymiar belki podwalinowej: 45x95 mm
Ilość drzwi: 1x 1590x2000 mm, 1x 940x1980 mm, 1x 840x1980 mm
Ilość okien nieotwieralnych: 2x 630x1800 mm
Ilość okien uch. rozw.: 1x 800x1050 mm, 2x 550x550 mm
Ilość podw. okien uch. rozw.: 1x 1560x1050 mm

KOLORY LAZURY DO MALOWANIA:
http://biblioteka.artbud.com.pl/pliki/1217/6146.png
OPCJE DODATKOWE:
http://biblioteka.artbud.com.pl/pliki/1217/7084.jpg
MONTAŻ DOMKU:
http://biblioteka.artbud.com.pl/pliki/1217/6147.jpg
PRZYGOTOWANIE PODŁOŻA:
http://biblioteka.artbud.com.pl/pliki/1217/6148.jpg
Ważne!
Warunki realizacji zamówienia i dostawy produktu:
Złożenie przez klienta zamówienia poprzez dodanie produktu do koszyka nie jest równoznaczne z kupnem produktu. Sprzedawca traktuje to jako zamówienie wstępne. Dopiero po obliczeniu kosztów dostawy i przyjęciu ich przez zamawiającego, sprzedawca przystępuje do realizacji zamówienia.
Opinie o produkcie (0)
Komentarze lub opinie wyświetlane pod produktem pochodzą od klientów, którzy nabyli produkt w naszym sklepie lub też mogą pochodzić od osób, którzy nie nabyli wskazanego produktu w naszym sklepie. Nie weryfikujemy wpisów dokonywanych przez osoby komentujące nasze produkty. Mogą pochodzić od klientów zalogowanych jak i niezalogowanych. Wyświetlamy wszystkie opinie pozytywne i negatywne.
