Newsletter
Podaj swój adres e-mail, jeżeli chcesz otrzymywać informacje o nowościach i promocjach.
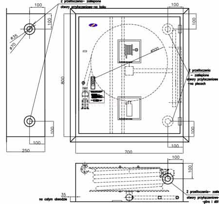
Hydrant wewnętrzny S 25 ZGW20 zawieszany lub wnękowy z miejscem na gaśnicę pod zwijadłem uniwersalny zamek PATENT
5
(Ilość ocen: 3)
dodaj do przechowalni
Opis
Hydrant wewnętrzny DN25 zawieszany lub wnękowy z wężem półsztywnym 25mm z miejscem na gaśnicę pod zwijadłem. Wersja uniwersalna: możliwość podłączenia tego samego hydrantu w wykonaniu lewym lub prawym. Otwory przyłączeniowe są zaślepione i umożliwiają podłączenie do instalacji zasilającej1”i2”, oferują sześć możliwości podłączeń: z boku, z tyłu, z góry. Ciśnienie pracy od 0,2 do 1,2 MPa.
Cena podstawowa prezentowana obok zdjęcia produktu dotyczy hydrantu ZGW20
Prosimy o wybór odpowiedniego hydrantu przez zaznaczenie w oknie: – hydrant Wybierz!
Cena bez GAŚNICY.
Parametry techniczne:
|
Symbol produktu |
Długość węża |
Wymiary hydrantu |
Wymiary wnęki |
|
PN-EN 671-1[Z-25/20G] - wersja wertykalna UNI |
20m |
800x700x250mm |
820x720x260mm |
Hydrant chroniony:
- znakiem towarowym ustanowionym prawem ochronnym nr 185129
- unijnym wzorem przemysłowym nr 001777418-0002
- wzorem użytkowym nr 62999
- wzorem użytkowym nr 64713
Skład hydrantu:
- szafka hydrantowa standardowa - blacha stalowa lakierowana farbą poliestrowa fasadowa typ Facade
- miejscem na gaśnicę pod zwijadłem.
- mosiężny zawór hydrantowy FI25
- zwijadło węża w kolorze RAL 3000 wychylne o 180° z osią wodną mosiężną i regulatorem siły rozwijania
- wąż tłoczny półsztywny o długości 20 m zgodny z normą PN-EN 694
- prądownica hydrantowa PWh-25 zgodna z normą PN-EN-671-1, na stałe podłączona do węża na zwijadle poprzez zakucie
- zamek Patent
- oznakowanie: znak 'Hydrant" i "Gaśnica" zgodnie z normą PN-92/N-01256/01 + tabliczka informacyjna zgodnie z normą PN-EN 671-1
- instrukcja montażu i konserwacji hydrantu
- instrukcja podłączenia i zamiany podłączeń uniwersalnego hydrantu wewnętrznego 25
- karta gwarancyjna
- nr identyfikacyjny
Szafka hydrantowa - dzięki zastosowaniu zawiasu krytego drzwi szafki można otworzyć o 180º

- STANDARD – blacha stalowa lakierowana farbą proszkową poliestrową-epoksydową
- FASADA – blacha ocynkowana malowana farbą fasadową
Kolorem standardowym jest kolor RAL 3000 i RAL 9003. Na życzenie Klienta wykonujemy szafki z całą kolorystyką zpalety barw RAL - FRONT INOX – front szafki ze stali nierdzewnej, korpus szafki standard
- INOX – blacha nierdzewna szlif 240
Drzwi szafki hydrantowej
- pełne z blachy stalowej
Za dopłatą na zapytanie
- pełne z okienkiem z plexi
- pełne z blachy stalowej z miejscem na ROP
- pełne z szyby hartowanej
- pełne ze szkła bezpiecznego
Przy drzwiach z szyb zastosowano zamek PATENT i innowacyjne rozwiązanie dla mocowania kluczyka. Dzięki temu nie ma konieczności stosowania dodatkowej skrzynki na kluczyk obok hydrantu.
Rodzaj zamka patent - zamek patentowy, kluczyk umieszczony jest za szybką bezpieczną

Sposób podłączenia zaworu hydrantowego 25


Za dopłatą na zapytanie
- Wykonanie z blachy stalowej ocynkowanej. Dzięki malowaniu farbą fasadową poliestrową rozwiązanie jest odporne na na warunki atmosferyczne oraz promieniowanie UV
- Wykonanie ze stali Inox - blacha nierdzewna gat. 304 szlif 240 lub 316L
- Dowolne logo lub wzór na froncie - wycinane laserowo
- Indywidualna kolorystyka z palety RAL.
- Drzwi ze szkła matowego lub przezroczystego
- Okienko PLEXI na drzwiczkach
- Zakucie prądownicy tuleją mosiężną
- Zamek EURO zamek przystosowany do założenia plomby
![]()
- Nietypowe wymiary na indywidualne potrzeby
- Oraz inne nietypowe potrzeby
Ważne!
Warunki realizacji zamówienia i dostawy produktu:
Złożenie przez klienta zamówienia poprzez dodanie produktu do koszyka nie jest równoznaczne z kupnem produktu.
Sprzedawca traktuje to jako zamówienie wstępne.
Dopiero po obliczeniu kosztów dostawy i przyjęciu ich przez zamawiającego, sprzedawca przystępuje do realizacji zamówienia.
Opinie o produkcie (0)
Komentarze lub opinie wyświetlane pod produktem pochodzą od klientów, którzy nabyli produkt w naszym sklepie lub też mogą pochodzić od osób, którzy nie nabyli wskazanego produktu w naszym sklepie. Nie weryfikujemy wpisów dokonywanych przez osoby komentujące nasze produkty. Mogą pochodzić od klientów zalogowanych jak i niezalogowanych. Wyświetlamy wszystkie opinie pozytywne i negatywne.

