Newsletter
Podaj swój adres e-mail, jeżeli chcesz otrzymywać informacje o nowościach i promocjach.
Kontener mieszkalny 7x4 z łazienką i aneksem kuchennym
0
(Ilość ocen: 0)
dodaj do przechowalni
Opis
Kontener mieszkalny 7x4 to komfortowa przestrzeń całoroczna o zwiększonej izolacji i wysokości. Dzięki zastosowaniu płyty PIR 120 mm oraz pełnemu wyposażeniu zapewnia wysoki standard użytkowania. Idealny jako domek mobilny, biuro lub zaplecze mieszkalne.
Najważniejsze cechy
- Kontener mieszkalny o powierzchni 28 m²
- Ściany i dach z płyty PIR 120 mm
- Aneks kuchenny oraz kompletna łazienka
- Klimatyzacja z funkcją grzania
- Okna trzyszybowe i drzwi ciepłe
- Wydzielone pomieszczenie wewnętrzne
- Estetyczna elewacja z lamelami
Wymiary
- Długość: 7,00 m
- Szerokość: 4,00 m
- Powierzchnia: 28 m²
- Wysokość wewnętrzna: od 2,60 m do 2,50 m
Dane techniczne
- Ściany: płyta warstwowa PIR 120 mm
- Dach: płyta warstwowa PIR 120 mm
- Podłoga: płyta warstwowa 120 mm + płyta OSB 10 mm
- Wykończenie podłogi: wykładzina PCV
Stolarka i przeszklenia
- Drzwi wejściowe pełne (ciepłe): 90 x 210 cm
- Okno balkonowe trzyszybowe: 160 x 210 cm
- Okna rozwierno-uchylne trzyszybowe: 100 x 100 cm, 50 x 50 cm
Wykończenie elewacji
- Lamele elewacyjne – 2,8 mb
- Lokalizacja: ściana frontowa z oknem balkonowym
- Kolor: jasny brąz (Winchester)
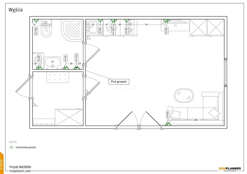
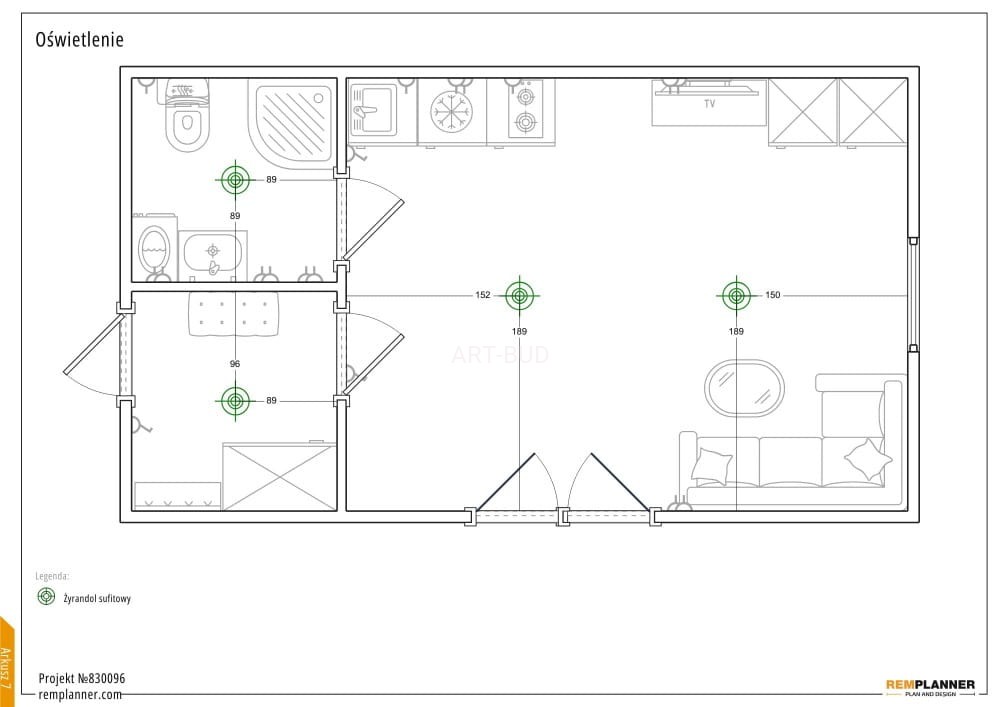
Instalacja elektryczna
- 3 punkty świetlne LED
- 5 podwójnych gniazd elektrycznych
- Przełączniki
- Skrzynka z bezpiecznikami
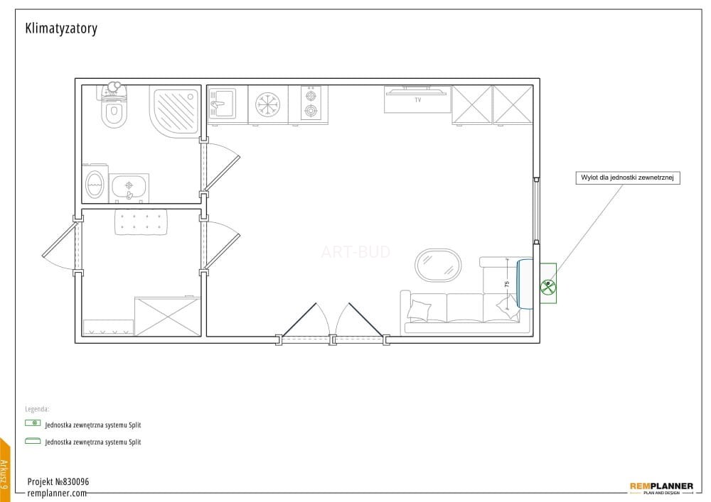
Ogrzewanie i klimatyzacja
- Klimatyzacja 3,5 kW z funkcją grzania
- Grzejnik łazienkowy drabinkowy
Wentylacja
- Wentylacja grawitacyjna – 1 szt.
Układ pomieszczeń
- Ścianka działowa wydzielająca strefy
- Drzwi wewnętrzne MDF
- Podział na część użytkową i sanitarną
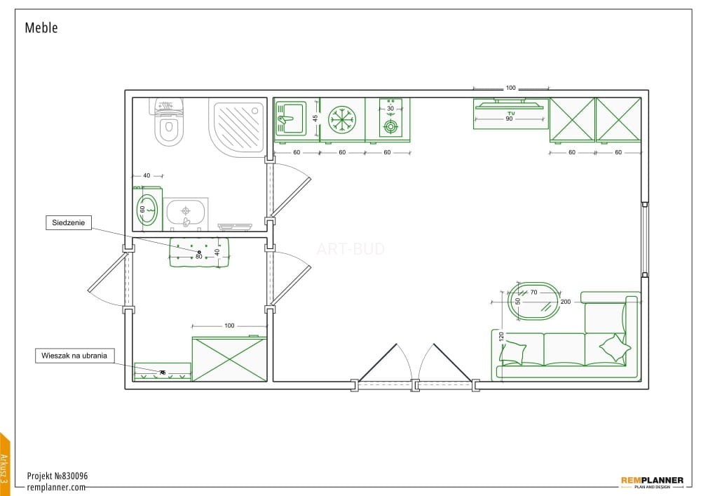
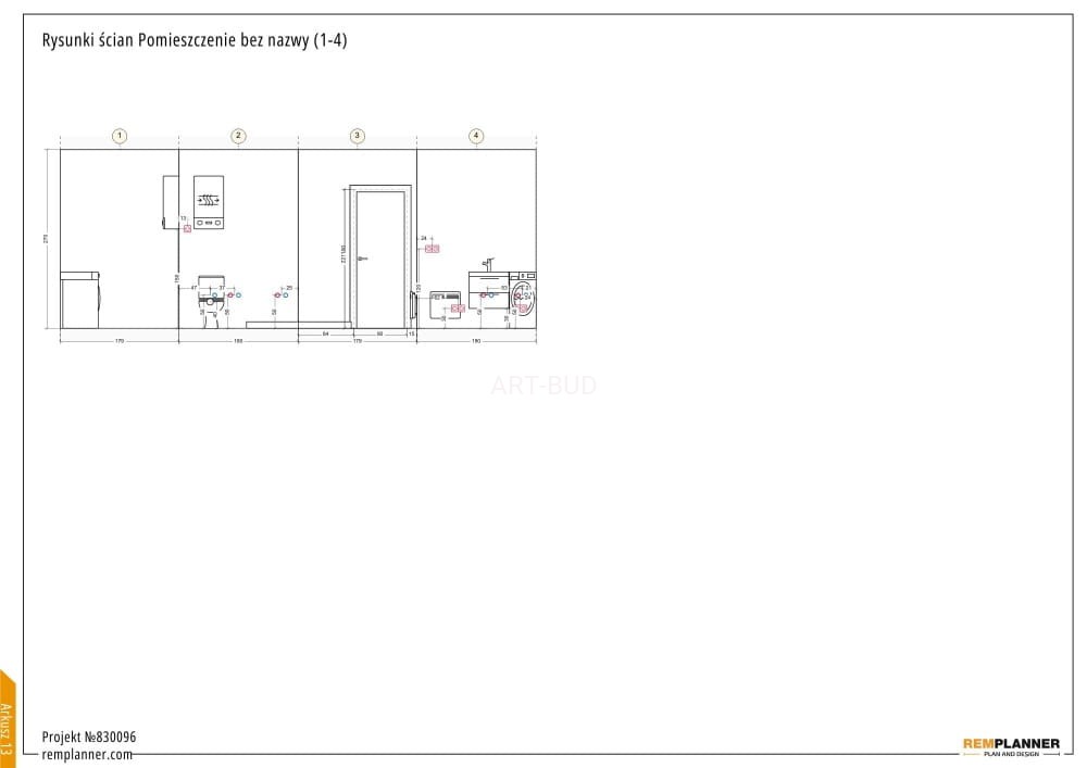
Aneks kuchenny
- Szafki górne i dolne
- Blat roboczy
- Zlewozmywak
- Płyta grzewcza 2-palnikowa
- Lodówka
Łazienka
- Kabina prysznicowa
- WC
- Umywalka z szafką
- Bojler
- Drzwi MDF
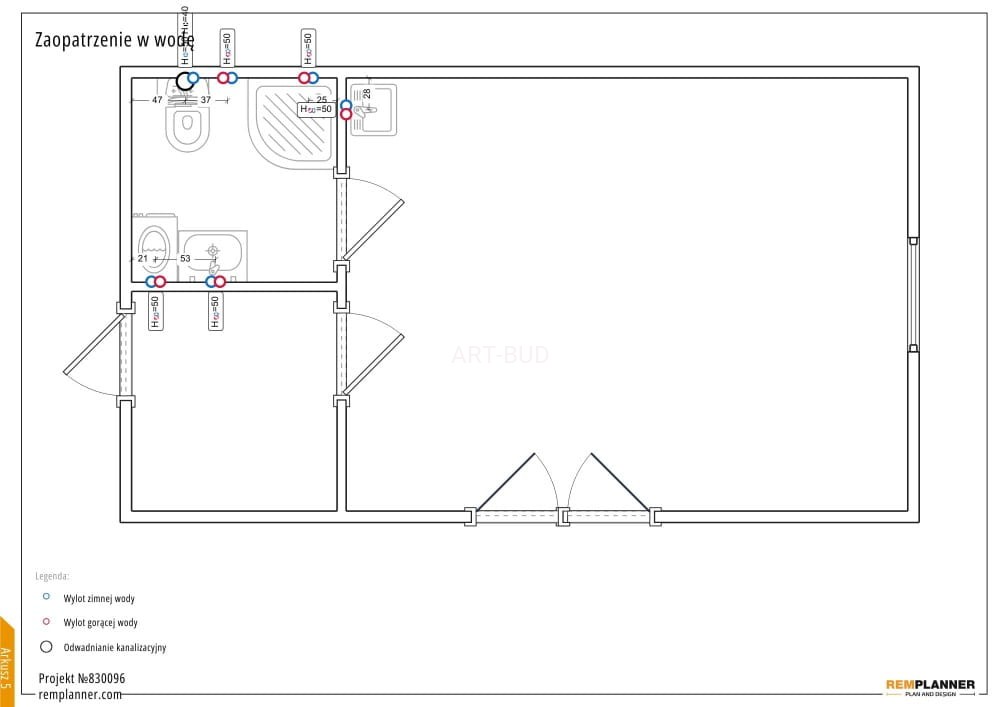
- Pełna instalacja wodno-kanalizacyjna
- Dodatkowy punkt wodno-kanalizacyjny
Opcje dodatkowe
Możliwość indywidualnej koncepcji zarówno wyposażenia, układu ścian, okien, drzwi instalacji oraz nawet wymiarów zewnętrznych czy ogrzewania.
Ten kontener jest wersją gotową przykładową. W sprawie wersji indywidualnych prosimy kontaktować się z handlowcami naszej firmy.
Koszt dostawy ustalany jest indywidualnie i zależy od zamawianej ilości oraz odległości miejsca dostawy. W celu przygotowania dokładnej wyceny prosimy o kontakt.
Opinie o produkcie (0)
Komentarze lub opinie wyświetlane pod produktem pochodzą od klientów, którzy nabyli produkt w naszym sklepie lub też mogą pochodzić od osób, którzy nie nabyli wskazanego produktu w naszym sklepie. Nie weryfikujemy wpisów dokonywanych przez osoby komentujące nasze produkty. Mogą pochodzić od klientów zalogowanych jak i niezalogowanych. Wyświetlamy wszystkie opinie pozytywne i negatywne.
